254 Nandina DriveRaeford, NC 28376
Due to the health concerns created by Coronavirus we are offering personal 1-1 online video walkthough tours where possible.

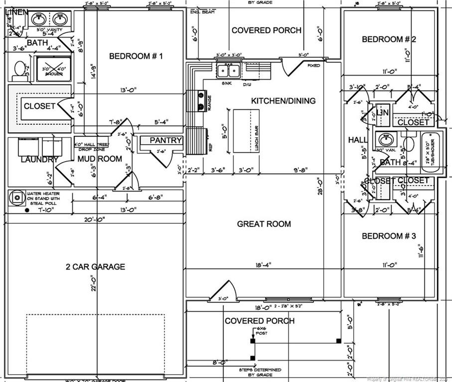
The 1340 sf plan offers a thoughtfully designed 3-bedroom, 2 bathroom ranch-style home situated on a spacious half-acre lot. With an open-concept layout, this home features a welcoming covered front porch that leads into a spacious great room, seamlessly connected to the kitchen and dining area—ideal for modern living and entertaining.The kitchen boasts a large island, granite countertops, stainless steel appliances, and abundant cabinet and counter space. The generous Owner’s Suite includes a large walk-in closet, dual vanities, and a walk-in shower. Two additional bedrooms share a full bath.Additional highlights include a separate laundry room, mudroom, and a two-car garage.Conveniently located just minutes from I-295 and close to the Cumberland County line, this home combines quiet suburban living with easy access to surrounding amenities on a big 0.5 acre lot
| 12 hours ago | Listing updated with changes from the MLS® | |
| 13 hours ago | Listing first seen on site |
Listings that are marked with an icon are provided courtesy of the Triangle MLS, Inc. of North Carolina, Internet Data Exchange Database. Copyright 2026 Triangle MLS, Inc. of North Carolina. All rights reserved.
Last checked: 2026-01-10 03:48 AM UTC

Did you know? You can invite friends and family to your search. They can join your search, rate and discuss listings with you.