1521 Eastbay Dr.Fayetteville, NC 28312
Due to the health concerns created by Coronavirus we are offering personal 1-1 online video walkthough tours where possible.




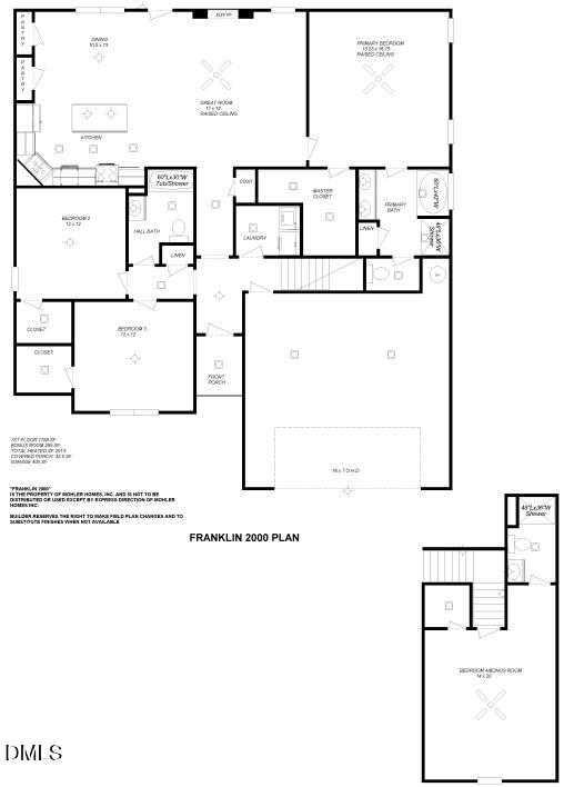
Spring Delivery! Stunning RANCH plan with 4th bedroom/ bonus and full bath up adjacent to Baywood Golf Club. Enjoy main-level living in a tranquil surrounding with easy highway access to all amenities & Fort Bragg with NO CITY TAXES. The Franklin plan features a large living room with fireplace focal point and raised ceiling and a door that provides seamless access to the rear patio. Designed for both elegance and functionality, the open kitchen overlooks the living room and features granite countertops, white shaker cabinets with gray accent island, subway tile backsplash and a suite of stainless steel appliances—including a microwave, dishwasher, and smooth top range—for added convenience. The primary suite is tucked away for privacy and showcases a vaulted ceiling and spacious WIC while the en-suite bathroom features a dual sink vanity with a quartz countertop, shaker cabinets, a walk-in shower with tile niche, separate garden tub with tile surround and a linen closet. Two additional bedrooms are located off the entry hall, each with hall access to a full bathroom that includes a vanity and a tub/shower combination. Durable luxury vinyl plank (LVP) flooring extends through the entry, great room, kitchen, dining area, laundry room and bathrooms. Upstairs is another bedroom or bonus room with full bathroom & large storage closet- an excellent space for a theatre room, watching the game, hosting guests, or even a second primary suite! Enjoy low-maintenance exterior vinyl siding with board and batten and stone accents with gutters and 30-year architectural shingles. This home features a 2-car front-load garage and sits on a sprawling .44 ac lot. All homes in Baywood Terrace include upgrades such as bedroom ceiling fans, painted garages, elevated trim packages. $10K Builder-Preferred Lender Incentive & 1 Year Golf/ Tennis Club and Pool Membership at Baywood Golf Club.
| yesterday | Listing updated with changes from the MLS® | |
| yesterday | Listing first seen on site |
Listings that are marked with an icon are provided courtesy of the Triangle MLS, Inc. of North Carolina, Internet Data Exchange Database. Copyright 2025 Triangle MLS, Inc. of North Carolina. All rights reserved.
Last checked: 2025-11-17 04:40 PM UTC

Did you know? You can invite friends and family to your search. They can join your search, rate and discuss listings with you.